租房
下载正顺好房APP
老香洲 湾仔沙 市政府旁 凤海新村 精装三房
空气清新
物有所值
住家首选
老城旺地
凤海新村
3000 元/月
整租
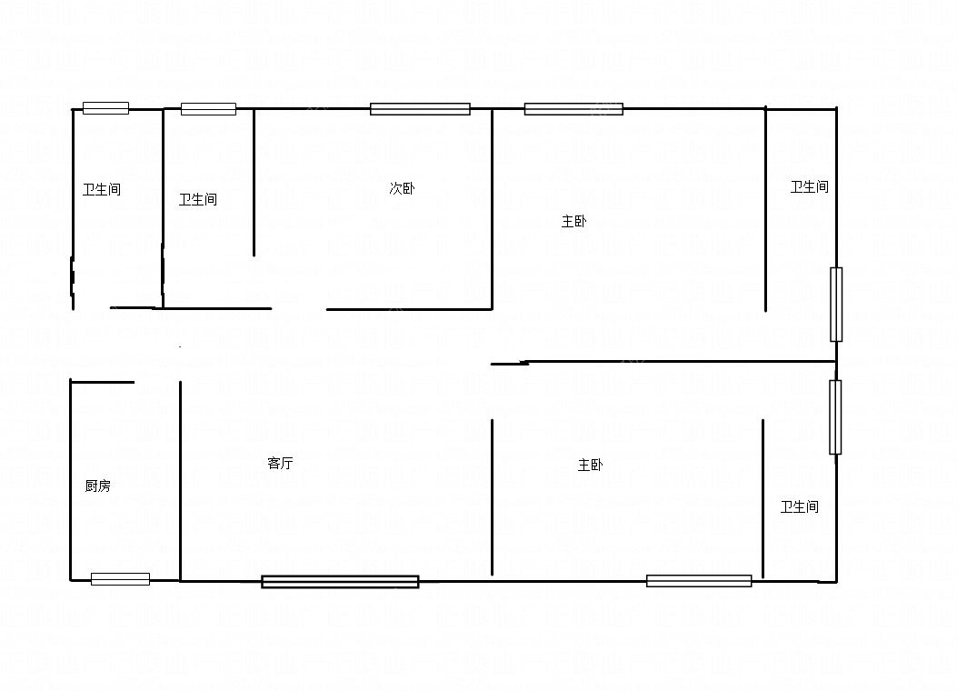
3房1厅1卫
高楼层/共6楼
82㎡
简装
1982年建
住宅
所在区域
老香洲
房源编号
1363895
更新日期
2025-12-10
OKHOME承诺真实房源,虚假举报有奖
加入对比
约车看房
联系客服
基本信息
基本属性
区域
老香洲
片区
凤凰南
小区
凤海新村
产权
楼层
高楼层/共6楼
电梯
装修
简装
朝向
空间结构
平层
楼龄
1982年
家具
全齐
家电
全齐
地板
磁砖
景观
无景
小学
香洲五小
中学
紫荆中学桃园校区
* 以上基本属性和交易属性信息仅供参考,购房时以房产证/不动产证信息为准
房源描述

房子独有的特点:

湾仔沙凤海新村待拆迁房投资首选,老香洲情侣路200米,扬名广场,,香洲百货,湾仔沙电脑城,野狸岛海岛歌剧院、珠海渔女、海滨公园、石景山公园。
推荐经纪人
宋子文 丹田一小分行
普通话
拆迁房
学区房
大专以上学历
4000781128 转 1945
赖远东 金域蓝湾分行
资深经纪人
有车
普通话
粤语
4000781128 转 1840
陈泳霏 凤凰花园二分行
4000781128 转 1558
房源房评
湾仔沙凤海新村待拆迁房投资首选,老香洲情侣路200米,扬名广场,,香洲百货,湾仔沙电脑城,野狸岛海岛歌剧院、珠海渔女、海滨公园、石景山公园。
大家好!此房子本人亲自勘察此房子,
1.交通方便,家门口有公交站,向左走200米是海滨公园,石景山公园,500米九洲百货,700米到渔女,向右走700米内有香炉湾沙滩,野狸岛,日月贝,扬名广场,珠海人民政府,珠海市人民医院,配套好
2.自己住理想,房间实用
3.因是老城区,靠海边,面临拆迁机会大
房源图片
s823A6B54DD5E456C890B63112A2918D8.jpg
s52710A26DF0C4A998098240A74B8108E.jpg
s493C00BDAE5743B0AFD59ED68B2E5170.jpg
s289CBDA474C846278F9F1D9E416BE1E7.jpg
s85AAD7FA449B4F41AA375BF013F14A7D.jpg
sE4E58898ECA145A9970487A4E46F07DC.jpg
s4F4BA1E0B9C54DD79A328BEA57F6E4E9.jpg
s9F5860B3462142EB8991FA17E761EC7F.jpg
sC3188E3EFBE94F1592005A7DC4CFCF96.jpg
s362705B636CD436882E32B5FEB6AEF8A.jpg
s2065DCD4FDE34581A0BEBB1C027DBC30.jpg
自制户型图
s71D35AAA2CC642E6B153BE51E8C5E133.jpg
s79F3F423BABC4F4A97C4E892C3B5D977.jpg
s35D156294E1A41A88E839B28DED0CF49.jpg
sC62271B9D7B74CC898CAE7D8F4FEFFD4.jpg
s4E9FD594C72644D9AF1A53B3C16ABC33.jpg
sAAF970B85B0140F59F18A0EEBF2053BD.jpg
s1C6241D9BFDA4423943ADECE85E5228D.jpg
sFDC04BCF16294DFEAB9CE1672D42F5D6.jpg
s5A85A4052EE34BC98C6AAB828E8B957C.jpg
s03163E1D69264010AC1E6DF40EDF6CD3.jpg
sF4112B3351214B0CB6E9F10F18876389.jpg
户型图
户型图
查看全部
航拍信息
地理位置
交通
教育
医疗
购物
生活
娱乐
公交站
地铁站
小区信息
凤海新村
小区地址
海城路
建造年代
1982
小区物业
开 发 商
管 理 费
0.0 元/平米*月
微信图片_20190621111751.jpg
微信图片_20190621111759.jpg
微信图片_20190621111806.jpg
凤海新村 (2).jpg
凤海新村.jpg
微信图片_20190621111728.jpg
微信图片_20190621111735.jpg
微信图片_20190621111743.jpg
微信图片_20190621111814.jpg
1
2
3
4
5
查看全部
历史成交
同类型租房
查看全部
同类型二手房
查看全部