首页
新房
二手房
租房
小区
资讯
在线委托
关于我们
租房
地图找房
空中看房
下载正顺好房APP
下载正顺好房APP
好房好生活OKHOME
柠溪香溪庄二期 .复式5房 诚意出售 小区少有放盘
视野开阔
空气清新
采光充足
格局方正
收藏
分享
分享房源
扫一扫推荐给朋友
您的位置:
正顺好房网
>
租房
>
详情页
提示:您的浏览器不支持视频播放,请升级浏览器》》
VR看房
视频看房
客厅
客厅
客厅
客厅
客厅
客厅
客厅
客厅
客厅
客厅
客厅
客厅
客厅
客厅
客厅
客厅
客厅
客厅
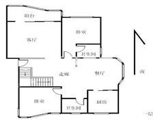
户型图
户型图
香溪庄
4300
元/月
整租
5房3厅4卫
高楼层/共7楼
214㎡
精装
南
1998年建
住宅
所在区域
柠溪
房源编号
1231945
更新日期
2025-03-24
OKHOME承诺真实房源,
虚假举报
有奖
加入对比
约车看房
联系客服
基本信息
房源描述
房源点评
房源照片
小区信息
地理位置
加入对比
约车看房
相关经纪人
基本信息
基本属性
区域
柠溪
片区
小区
香溪庄
产权
商品房
楼层
高楼层/共7楼
电梯
无
装修
精装
朝向
南
空间结构
复式
楼龄
1998年
家具
无
家电
无
地板
磁砖
景观
园景
小学
六小
中学
市五中
* 以上基本属性和交易属性信息仅供参考,购房时以房产证/不动产证信息为准
房源描述
房子独有的特点:
1:非常实用5房,稀缺户型
2:靠近市场,广场,超市,巴士站等生活便利
3:高楼层,采光好!
4.近5中6小
5.近柠溪市场与香柠花园巴士站
相关经纪人
彭海清
保利五月花分行
学区房
普通话
大专以上学历
高端物业
我的微信
扫一扫添加微信
扫码拨号
15819404519
钱礼荣
保利五月花分行
中高档公寓
学区房
拆迁房
普通话
我的微信
扫一扫添加微信
扫码拨号
13431915926
房源房评
陈玉华
花园市场一行
本人陈玉华,专业房地产从业人员,实地看过该房,对该房及房产交易等非常熟悉,如需要了解更多详细信息,请来电咨询15089168363;谢谢!
◆【本房源优势】:
1、该房在中间楼层,采光通风不错, 阳台能晒到太阳;
2、装修为住家装修,可刷墙入住,也可根据自己要求设计自己 想要的装修风格;
3、客厅阳台朝南,视野很好,厨房和洗手间干爽、宽敞、明亮;
4、客厅开间3米,进深8米,客厅餐厅连通,提供了更大的活动空间;
5、房间布局合理,动静分区明确,干湿布局合理,理想的住家首选户型。
◆【相关配套】:
1、本小区为2000年建成,24小时物业管理!
2、小区旁边就是第六小.学,5分钟就到第五中学,小孩上学非.常方便!
3、小区门口就有柠溪市场,附近得一商场,香柠花园巴士站。步行5分钟生活圈,闹中取静。
4、附近有体育中心,市图书馆,儿童活动中心,大镜山公园等周.末及假日亦可放松心情。
陈海燕
花园市场一行
【香溪庄二期】
房屋介绍:
1、【房源情况】 建于1998年
2、【房源户型】 6楼,5房2厅4卫2阳台,南向,通风采光好。
3、【税费情况】 业主的税费38万,实收
4、【装修情况】 房子精装修,可以直接入住。
公司介绍:
正顺地产从2001年到现在17年,珠海.第 一 老 字 号 品 牌,现在公司2000多人,代理珠海.西区.横琴.市区,中山.坦洲.三乡.市区等等100多个项目。
公司理念:人正.事顺.行更远。随时来电咨询相关房产买卖过户,交易流程,银行按揭.抵押办理.等。
个人介绍:
欢迎光临我的网上店铺:
本人小名;陈海燕 职位:门店经理 籍贯:广东
从事房地产行业6年多,一直坚信公司的成功理念,感谢您能在当前杂乱的房产市场走势。并从千百个房源帖子中,您能选择我, 是咱们的缘分,我会尽心尽力为您做好买房卖房建议……
相信我的专业,真诚为您的购房置业提供真诚.保驾护航服务。
私家车接送看房: 135-2728-5221 陈海燕【微信同号】
房源图片
查看全部
航拍信息
全屏观看
地理位置
交通
教育
医疗
购物
生活
娱乐
公交站
地铁站
小区信息
查看更多 >
香溪庄
小区地址
香洲区香溪路118号
建造年代
1998
小区物业
珠海市住宅物业管理有限公司
开 发 商
暂无
管 理 费
0.5 元/平米*月
在售 53 套
在租 13 套
查看全部
历史成交
查看更多 >
同类型租房
查看全部
同类型二手房
查看全部
预车看房
预约提交成功我们有专人与您取得联系
预约日期
随时
星期一
24
星期二
25
星期三
26
星期四
27
星期五
28
星期六
29
星期日
30
您的称呼
先生
女士
手机号码
短信验证码
获取验证码
验证码
其他要求
提交预约
相关经纪人
选择相关经纪人进行咨询联系
彭海清
保利五月花分行
学区房
普通话
大专以上学历
高端物业
我的微信
扫一扫添加微信
扫码拨号
15819404519
钱礼荣
保利五月花分行
中高档公寓
学区房
拆迁房
普通话
我的微信
扫一扫添加微信
扫码拨号
13431915926
手机登陆
密码登陆
立即登陆
立即登陆
虚假举报
房源ID(1231945)
您的称呼
手机号码
补充描述
验证码:
提 交
【房源】虚假举报属实,奖励 100 元。
【房评】虚假举报属实,奖励 50 元。
在线委托
房源对比
咨询客服QQ
联系客服
474738599
400-168-0808
咨询客服电话
09:30 - 18:30
周一至周六
微信公众号
随时随地关注珠海楼市
微信小程序
正顺好房官方小程序
官方APP
扫描下载正顺好房网APP
专家答疑
在线留言
返回顶部
在线留言
感谢您一直以来对正顺好房网的关注和支持,如果您在使用过程中遇到问题或意见建议请留言反馈给我们,谢谢!
如需我们跟您联系或答复的话,请您留下联系方式。
姓名
电话
E-mail
*
反馈内容
验证码
提交反馈
房源对比
修改
取消
新 房
二手房
租 房