首页
新房
二手房
租房
工商铺
小区
资讯
在线委托
关于我们
二手房
地图找房
空中看房
下载正顺好房APP
下载正顺好房APP
好房好生活OKHOME
金湾红旗刚需小三房 (中珠上郡)毛坯交楼标准
园林景
格局方正
小康之家
老城旺地
收藏
分享
分享房源
扫一扫推荐给朋友
您的位置:
正顺好房网
>
二手房
>
详情页
提示:您的浏览器不支持视频播放,请升级浏览器》》
VR看房
视频看房
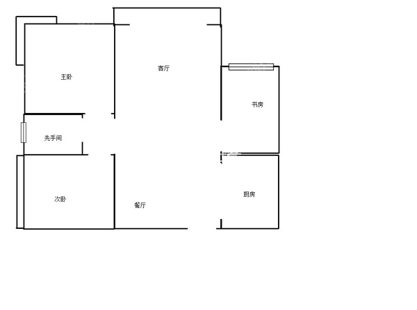
户型图
中珠上郡
50.0
万
5942元/㎡
首付8万 贷款42万 月供1908元,30年(仅供参考)
3房2厅1卫
低楼层/共18楼
84㎡
毛坯
北
2015年建
住宅
所在区域
金湾
房源编号
1677944
更新日期
2026-05-24
OKHOME承诺真实房源,
虚假举报
有奖
加入对比
约车看房
联系客服
基本信息
房源描述
房源点评
房源照片
小区信息
地理位置
加入对比
约车看房
推荐经纪人
基本信息
基本属性
区域
金湾
片区
红旗
小区
中珠上郡 二三期
产权
楼层
低楼层/共18楼
电梯
有
状态
全新未住
税费
满五唯一
装修
毛坯
朝向
北
空间结构
平层
楼龄
2015年
家具
无
家电
无
地板
水泥地
景观
无景
小学
虹晖小学
中学
红旗中学初中部
税费参考
承担卖房税费
约 5000 元
承担买房税费
买房税费主要包括:契税:(1%、1.5%、2%、3%)首套或二套<140㎡按1%,首套>140㎡按1.5%,二套>140㎡按2%,第三套起及非住宅按3%
楼层保密说明
按照总层高/3,分为低楼层、中楼层、高楼层,共三个段
* 以上基本属性和交易属性信息仅供参考,购房时以房产证/不动产证信息为准
房源卖点
卖点一
此房是中珠上郡最好的一个户型之一,刚需小三房,唯一不足的是朝向是北向的,但这不影响居住舒适度。因为旁边有别的楼栋,所以不怕西晒。
推荐经纪人
马兴天
中珠上郡分行
高端物业
资深经纪人
别墅
商铺
4000781128 转 1920
我的微信
扫一扫添加微信
周强强
珠光新城分行
4000781128 转 1915
我的微信
扫一扫添加微信
李英1
Q金海华府分店
4000781128 转 1275
我的微信
扫一扫添加微信
房源房评
蔡明海
中珠上郡二分行
本人蔡明海,在正顺好房上班7年,精耕红旗,航空新城,湖心路一手二手房源,看房车接车送:13532288836,
此房经我勘察有以下卖点:
1、【房源介绍】此房是金湾红旗中珠上郡高端大型生活社区,小区环境好,房子价格美丽,有考虑在这边买房子的,把握机会!
2、【户型优势】83平,朝东南向,毛坯房,视野无遮挡。
3、【税收优势】满五唯一无税
4、【小区优势】小区统一管理,住户素质高,安全性高。走在小区里,犹如在逛公园,非常舒适的。
曾婉逞
愉翠雅园店
小曾!电话:13411426068在正顺地产,精耕红旗,航空新城,湖心路一手二手房源,看房车接车送:此房经我勘察有以下优点:
1、【房源介绍】此房位于金湾,房子价格美丽,有考虑在这边买房子的,把握机会!
2、【户型优势】户型实用
给你更多的自由创意装修空间。
3、【小区优势】统一管理,住户素质高,小区绿化好,小区大,安全性高。走在小区里,犹如在逛公园,非常舒适的。
陈聪文
中珠上郡二分行
本人陈聪文,在正顺好房上班,精耕中珠上郡,航空新城,红旗,湖心路一手二手房源,看房车接车送:13544923577,此房经我勘察有以下卖点:1、【房源介绍】此房是金湾红旗高端大型低密度住宅生活社区,小区环境好,中珠一级物业管理,房子价格美丽,有考虑在这边买房子的,把握机会! 2、【户型优势】84平3房,东南朝向 3、【税收优势】房子满两年。 4、【小区优势】统一管理,住户素质高,安全性高。走在小区里,犹如在逛公园,非常舒适的
房源图片
查看全部
房贷计算器
房屋总价
50.00
贷款成数
2成
3成
4成
5成
6成
7成
8成
8.5成
贷款类别
商业贷款
公积金贷款
组合贷款
贷款年限
30年(360期)
29年(348期)
28年(336期)
27年(324期)
26年(312期)
25年(300期)
24年(288期)
23年(276期)
22年(264期)
21年(252期)
20年(240期)
19年(228期)
18年(216期)
17年(204期)
16年(192期)
15年(180期)
14年(168期)
13年(156期)
12年(144期)
11年(132期)
10年(120期)
9年(108期)
8年(96期)
7年(84期)
6年(72期)
5年(60期)
4年(48期)
3年(36期)
2年(24期)
1年(12期)
商贷贷款额
商贷利率
首套3.00
二套3.00
公积金贷款额
公积金利率
参考利率2.85
参考利率3.325
立即计算
等额本息还款
等额本金还款
首付
万
贷款总额
万
月供
元
总利息
万
本息总额
万
首付
万
贷款总额
万
月供
元
每月递减
元
总利息
万
本息总额
万
注:本次计算仅作为购房参考,结合实际情况了解更精确首付、贷款方案,建议咨询专业顾问
首付和贷款情况咨询
航拍信息
全屏观看
地理位置
交通
教育
医疗
购物
生活
娱乐
公交站
地铁站
小区信息
查看小区 >
中珠上郡 二三期
小区地址
一期金湾区红旗镇双湖北路188号、二三期双湖北路199号、四期虹晖二路188号
建造年代
2015
小区物业
中珠物业
开 发 商
珠海中珠房地产开发有限公司
管 理 费
1.7 元/平米*月
在售 79 套
在租 27 套
查看全部
历史成交
查看更多 >
同类型二手房
查看全部
同类型租房
查看全部
预车看房
预约提交成功我们有专人与您取得联系
预约日期
随时
星期日
24
星期一
25
星期二
26
星期三
27
星期四
28
星期五
29
星期六
30
您的称呼
先生
女士
手机号码
输入识别码
短信验证码
获取验证码
其他要求
提交预约
推荐经纪人
选择推荐经纪人进行咨询联系
马兴天
中珠上郡分行
高端物业
资深经纪人
别墅
商铺
我的微信
扫一扫添加微信
扫码拨号
13825650701
周强强
珠光新城分行
我的微信
扫一扫添加微信
扫码拨号
15818988523
李英1
Q金海华府分店
我的微信
扫一扫添加微信
扫码拨号
13128578855
手机登陆
密码登陆
立即登陆
立即登陆
虚假举报
房源ID(1677944)
您的称呼
手机号码
补充描述
验证码:
提 交
【房源】虚假举报属实,奖励 100 元。
【房评】虚假举报属实,奖励 50 元。
在线委托
房源对比
咨询客服QQ
联系客服
474738599
400-168-0808
咨询客服电话
09:30 - 18:30
周一至周六
微信公众号
随时随地关注珠海楼市
微信小程序
正顺好房官方小程序
官方APP
扫描下载正顺好房网APP
专家答疑
在线留言
返回顶部
在线留言
感谢您一直以来对正顺好房网的关注和支持,如果您在使用过程中遇到问题或意见建议请留言反馈给我们,谢谢!
如需我们跟您联系或答复的话,请您留下联系方式。
姓名
电话
E-mail
*
反馈内容
验证码
提交反馈
房源对比
修改
取消
新 房
二手房
租 房