首页
新房
二手房
租房
工商铺
小区
资讯
在线委托
关于我们
二手房
地图找房
空中看房
下载正顺好房APP
下载正顺好房APP
好房好生活OKHOME
二中文园 五洲花城精装3房2厅 学区不占用 带一个大平台
园林景
空气清新
视野开阔
格局方正
收藏
分享
分享房源
扫一扫推荐给朋友
您的位置:
正顺好房网
>
二手房
>
详情页
VR看房
客厅
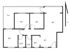
户型图
户型图
五洲花城山场
251.0
万
26010元/㎡
首付38万 贷款213万 月供9579元,30年(仅供参考)
3房2厅2卫
低楼层/共18楼
96㎡
精装
北
2004年建
住宅
所在区域
新香洲
房源编号
1379844
更新日期
2025-11-27
OKHOME承诺真实房源,
虚假举报
有奖
加入对比
约车看房
联系客服
基本信息
房源描述
房源点评
房源照片
小区信息
地理位置
加入对比
约车看房
推荐经纪人
基本信息
基本属性
区域
新香洲
片区
文园片区
小区
五洲花城山场
产权
商品房
楼层
低楼层/共18楼
电梯
有
状态
已使用
税费
满2年
装修
精装
朝向
北
空间结构
平层
楼龄
2004年
家具
全齐
家电
全齐
地板
磁砖
景观
无景
小学
香山学校
中学
文园中学
税费参考
承担卖房税费
约 25100 元
承担买房税费
买房税费主要包括:契税:(1%、1.5%、2%、3%)首套或二套<140㎡按1%,首套>140㎡按1.5%,二套>140㎡按2%,第三套起及非住宅按3%
楼层保密说明
按照总层高/3,分为低楼层、中楼层、高楼层,共三个段
* 以上基本属性和交易属性信息仅供参考,购房时以房产证/不动产证信息为准
房源卖点
卖点一
1、新香洲明星小区,配套成熟,生活方便,出小区就有市场、巴士站;
卖点二
2、房子格局方正实用,用料结实,精装3房两厅带大平台,采光通风非常好;
卖点三
3、文园香山校区不占用,产权清晰,业主诚心出售;
推荐经纪人
黄静梅
Q澳洲园分店
粤语
有车
资深经纪人
普通话
4000781128 转 1256
我的微信
扫一扫添加微信
陈海燕
银桦新村二行
高端物业
学区房
粤语
4000781128 转 1787
我的微信
扫一扫添加微信
陈江龙
总经办
资深经纪人
高端物业
别墅
学区房
4000781128 转 1027
我的微信
扫一扫添加微信
张琴
Q华发商业街分店
4000781128 转 1302
我的微信
扫一扫添加微信
吴宣华
Q五洲花城分店
4000781128 转 1215
我的微信
扫一扫添加微信
房源房评
陈海燕
银桦新村二行
本人实地勘察了此房,了解房子情况和业主卖房原因,欢迎联系:
房屋介绍:
1、【房源情况】建于2004年
2、【房源户型】电梯2楼,3房2厅2卫2阳台,北向,通风采光好。
3、【税费情况】业主的税费实收
4、【装修情况】房子精装修,可以直接入住。
5、【學情况】文园中學,香山小學。
公司介绍:
正顺从2001年到现在20年,珠海.第 一 老 字 号 品 牌,现在公司2000多人,代理珠海.西区.横琴.市区,中山.坦洲.三乡.市区等等100多个项目。
公司理念:人正.事顺.行更远。随时来电咨询相关房产买卖过户,交易流程,银行按揭.抵押办理.等。
个人介绍:
欢迎光临我的网上店铺:
从事房行业6年多,一直坚信公司的成功理念,感谢您能在当前杂乱的房产市场走势。并从千百个房源帖子中,您能选择我, 是咱们的缘分,我会尽心尽力为您做好买房卖房建议……
相信我的专业,真诚为您的购房置业提供真诚.保驾护航服务。
私家车接送看房: 陈海燕【微信同号】
房源图片
查看全部
房贷计算器
房屋总价
251.00
贷款成数
2成
3成
4成
5成
6成
7成
8成
8.5成
贷款类别
商业贷款
公积金贷款
组合贷款
贷款年限
30年(360期)
29年(348期)
28年(336期)
27年(324期)
26年(312期)
25年(300期)
24年(288期)
23年(276期)
22年(264期)
21年(252期)
20年(240期)
19年(228期)
18年(216期)
17年(204期)
16年(192期)
15年(180期)
14年(168期)
13年(156期)
12年(144期)
11年(132期)
10年(120期)
9年(108期)
8年(96期)
7年(84期)
6年(72期)
5年(60期)
4年(48期)
3年(36期)
2年(24期)
1年(12期)
商贷贷款额
商贷利率
首套3.00
二套3.00
公积金贷款额
公积金利率
参考利率2.85
参考利率3.325
立即计算
等额本息还款
等额本金还款
首付
万
贷款总额
万
月供
元
总利息
万
本息总额
万
首付
万
贷款总额
万
月供
元
每月递减
元
总利息
万
本息总额
万
注:本次计算仅作为购房参考,结合实际情况了解更精确首付、贷款方案,建议咨询专业顾问
首付和贷款情况咨询
航拍信息
全屏观看
地理位置
交通
教育
医疗
购物
生活
娱乐
公交站
地铁站
小区信息
查看更多 >
五洲花城山场
小区地址
香洲区山场路1号
建造年代
2004
小区物业
珠海山祥物业管理有限公司
开 发 商
五洲房地产开发有限公司
管 理 费
1.5 元/平米*月
在售 65 套
在租 32 套
查看全部
历史成交
查看更多 >
同类型二手房
查看全部
同类型租房
查看全部
预车看房
预约提交成功我们有专人与您取得联系
预约日期
随时
星期四
27
星期五
28
星期六
29
星期日
30
星期一
1
星期二
2
星期三
3
您的称呼
先生
女士
手机号码
输入识别码
短信验证码
获取验证码
其他要求
提交预约
推荐经纪人
选择推荐经纪人进行咨询联系
黄静梅
Q澳洲园分店
粤语
有车
资深经纪人
普通话
我的微信
扫一扫添加微信
扫码拨号
17308268927
陈海燕
银桦新村二行
高端物业
学区房
粤语
我的微信
扫一扫添加微信
扫码拨号
13527285221
陈江龙
总经办
资深经纪人
高端物业
别墅
学区房
我的微信
扫一扫添加微信
扫码拨号
13825655567
张琴
Q华发商业街分店
我的微信
扫一扫添加微信
扫码拨号
13697771230
吴宣华
Q五洲花城分店
我的微信
扫一扫添加微信
扫码拨号
13726291617
手机登陆
密码登陆
立即登陆
立即登陆
虚假举报
房源ID(1379844)
您的称呼
手机号码
补充描述
验证码:
提 交
【房源】虚假举报属实,奖励 100 元。
【房评】虚假举报属实,奖励 50 元。
在线委托
房源对比
咨询客服QQ
联系客服
474738599
400-168-0808
咨询客服电话
09:30 - 18:30
周一至周六
微信公众号
随时随地关注珠海楼市
微信小程序
正顺好房官方小程序
官方APP
扫描下载正顺好房网APP
专家答疑
在线留言
返回顶部
在线留言
感谢您一直以来对正顺好房网的关注和支持,如果您在使用过程中遇到问题或意见建议请留言反馈给我们,谢谢!
如需我们跟您联系或答复的话,请您留下联系方式。
姓名
电话
E-mail
*
反馈内容
验证码
提交反馈
房源对比
修改
取消
新 房
二手房
租 房