首页
新房
二手房
租房
工商铺
小区
资讯
在线委托
关于我们
二手房
地图找房
空中看房
下载正顺好房APP
下载正顺好房APP
好房好生活OKHOME
老香洲万科金域蓝湾,高档小区,看海景房,一中学位 业主稳定
无敌海景
无敌山景
园林景
格局方正
收藏
分享
分享房源
扫一扫推荐给朋友
您的位置:
正顺好房网
>
二手房
>
详情页
提示:您的浏览器不支持视频播放,请升级浏览器》》
VR看房
视频看房
客厅
阳台
走廊
餐厅
厨房
主卧
次卧
书房
卫生间
卫生间
阳台
走廊
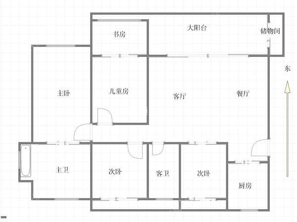
户型图
万科金域蓝湾
715.0
万
39949元/㎡
首付107万 贷款608万 月供27288元,30年(仅供参考)
4房2厅2卫
中楼层/共47楼
179㎡
高档
东
2008年建
住宅
所在区域
老香洲
房源编号
1001297
更新日期
2026-03-21
OKHOME承诺真实房源,
虚假举报
有奖
加入对比
约车看房
联系客服
基本信息
房源描述
房源点评
房源照片
小区信息
地理位置
加入对比
约车看房
推荐经纪人
基本信息
基本属性
区域
老香洲
片区
凤凰中
小区
万科金域蓝湾
产权
商品房
楼层
中楼层/共47楼
电梯
有
状态
已使用
税费
满2年
装修
高档
朝向
东
空间结构
平层
楼龄
2008年
家具
部分
家电
部分
地板
木地板
景观
全海景
小学
第七小学
中学
紫荆中学凤凰校区
税费参考
承担卖房税费
约 71500 元
承担买房税费
买房税费主要包括:契税:(1%、1.5%、2%、3%)首套或二套<140㎡按1%,首套>140㎡按1.5%,二套>140㎡按2%,第三套起及非住宅按3%
楼层保密说明
按照总层高/3,分为低楼层、中楼层、高楼层,共三个段
* 以上基本属性和交易属性信息仅供参考,购房时以房产证/不动产证信息为准
房源卖点
卖点一
卖点。1:老香洲少有的高档大型小区,万科金域蓝湾,物业管理严格服务好,
卖点二
2:中等楼层,可以看海景,
卖点三
3:是一中的学位,学校是珠海最好的学校。
卖点四
4:周边配套完善,生活方便,百分百百货,扬名广场,尚都百货,朝阳市场,华润万家,等等大型超市,市场。
推荐经纪人
黄伟云
金域蓝湾分行
4000781128 转 1504
我的微信
扫一扫添加微信
房源图片
查看全部
房贷计算器
房屋总价
715.00
贷款成数
2成
3成
4成
5成
6成
7成
8成
8.5成
贷款类别
商业贷款
公积金贷款
组合贷款
贷款年限
30年(360期)
29年(348期)
28年(336期)
27年(324期)
26年(312期)
25年(300期)
24年(288期)
23年(276期)
22年(264期)
21年(252期)
20年(240期)
19年(228期)
18年(216期)
17年(204期)
16年(192期)
15年(180期)
14年(168期)
13年(156期)
12年(144期)
11年(132期)
10年(120期)
9年(108期)
8年(96期)
7年(84期)
6年(72期)
5年(60期)
4年(48期)
3年(36期)
2年(24期)
1年(12期)
商贷贷款额
商贷利率
首套3.00
二套3.00
公积金贷款额
公积金利率
参考利率2.85
参考利率3.325
立即计算
等额本息还款
等额本金还款
首付
万
贷款总额
万
月供
元
总利息
万
本息总额
万
首付
万
贷款总额
万
月供
元
每月递减
元
总利息
万
本息总额
万
注:本次计算仅作为购房参考,结合实际情况了解更精确首付、贷款方案,建议咨询专业顾问
首付和贷款情况咨询
航拍信息
全屏观看
地理位置
交通
教育
医疗
购物
生活
娱乐
公交站
地铁站
小区信息
查看小区 >
万科金域蓝湾
小区地址
香洲区情侣中路299号
建造年代
2008
小区物业
万科物业
开 发 商
万科地产
管 理 费
3.4 元/平米*月
在售 67 套
在租 31 套
查看全部
历史成交
查看更多 >
同类型二手房
查看全部
同类型租房
查看全部
预车看房
预约提交成功我们有专人与您取得联系
预约日期
随时
星期六
21
星期日
22
星期一
23
星期二
24
星期三
25
星期四
26
星期五
27
您的称呼
先生
女士
手机号码
输入识别码
短信验证码
获取验证码
其他要求
提交预约
推荐经纪人
选择推荐经纪人进行咨询联系
黄伟云
金域蓝湾分行
我的微信
扫一扫添加微信
扫码拨号
13802677054
手机登陆
密码登陆
立即登陆
立即登陆
虚假举报
房源ID(1001297)
您的称呼
手机号码
补充描述
验证码:
提 交
【房源】虚假举报属实,奖励 100 元。
【房评】虚假举报属实,奖励 50 元。
在线委托
房源对比
咨询客服QQ
联系客服
474738599
400-168-0808
咨询客服电话
09:30 - 18:30
周一至周六
微信公众号
随时随地关注珠海楼市
微信小程序
正顺好房官方小程序
官方APP
扫描下载正顺好房网APP
专家答疑
在线留言
返回顶部
在线留言
感谢您一直以来对正顺好房网的关注和支持,如果您在使用过程中遇到问题或意见建议请留言反馈给我们,谢谢!
如需我们跟您联系或答复的话,请您留下联系方式。
姓名
电话
E-mail
*
反馈内容
验证码
提交反馈
房源对比
修改
取消
新 房
二手房
租 房